Affiche d'Architecte
Sujet de l'étude : faire l'affiche de promotion d'une maison d'architecte
Technique au choix, ce sera Illustrator
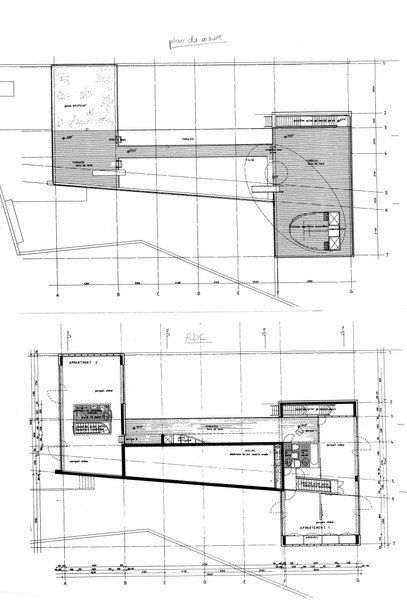
L'architecte est au choix. Après consultation de plusieurs livres d'architectes, je m'arrête sur Koolhaas Rem, en particulier sa maison Al Ava
située à Saint-Cloud.
Une maison moderne bâtie sur un terrain étroit.
Un mélange de maison de verre sur pilotis, des boîtes qui s'imbriquent, surmontées d'une piscine.
Les éléments du bas sont reliés entre eux pas un long couloir, ils communiquent avec l'étage supérieur par un escalier en colimaçon. Les éléments du haut sont reliés par une passerelle extérieure qui longe la piscine.
J'axe l'affiche sur la légèreté, l'inversion des masses, la transparence et l'aspect central de l'escalier, le tout dans un tracé épuré et moderne qui laisse visible les différents matériaux utilisés et la présence de la piscine.
Les sources d'information ...










